Neu - Neu - Neu - Neu - Neu - Neu - Neu - Neu - Neu - Neu - Neu - Neu - Neu Studie Seniorenwohnpark Vierenstraße Neudorf Exklusive, altersgerechte Eigentums- und Mietwohnungen in bester Waldrandlage direkt neben der Bimmelbahn | ||||||||
Untergeschoß mit Gemeinschafts- einrichtungen | ![]() | |||||||
Im Bereich des Untergeschosses der Wohnanlage 1 (ehemaliges Gästehaus des Hotels "Vierenstraße") befinden sich Gemeinschafts- und Serviceeinrichtungen für die gesamte Seniorenwohnparkanlage. | ||||||||
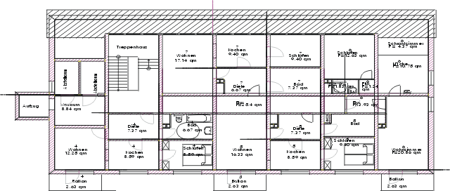
Obergeschoß mit Wohnungen | ![]() | |||||||
Der Umbau des Gästehauses des Hotels Vierenstraße befindet sich zur Zeit in Planung. Es wurden verschiedene Varianten erarbeitet. So die vorliegende mit altersgerechten Wohnungen aber auch mit gut ausgestatteten Ferienwohnungen. Startseite Seniorenwohnpark neue Wohnanlage Kontakt | ||||||||