Baubüro Helmut Löser Ingenieur für Hochbau Tel/Fax (037342)16930/16931 | ![]() | |||||||
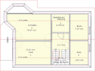
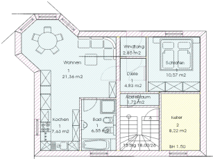
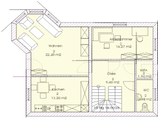
EFH 3 Dieses Einfamilienhaus mit Einliegerwohnung im Untergeschoß wurde von mir geplant. Es steht für Sie zur Realisierung bereit. | ||||||||
![]() | ||||||||
![]() | ![]() | |||||||
![]() | EFH mit Einliegerwohnung wurde für die trditionelle Bauweise konzipiert. Umbauter Raum 790 m³ Wohnfläche 185 m² dav. Einlieger-WE 55 m² dav. Eigentümer-WE 130 m² | |||||||
Startseite EFH 1 EFH 2 Kontakt | ||||||||